Structural Shop Drawings Services

Get precise Structural Shop Drawings Services for steel, concrete, and rebar detailing. Ensure error-free fabrication and fast approvals. Request a quote today.

Structural Shop Drawings Services - Structural Blueprints

Structural Shop Drawings Services 1
Structural Shop Drawings Services 2

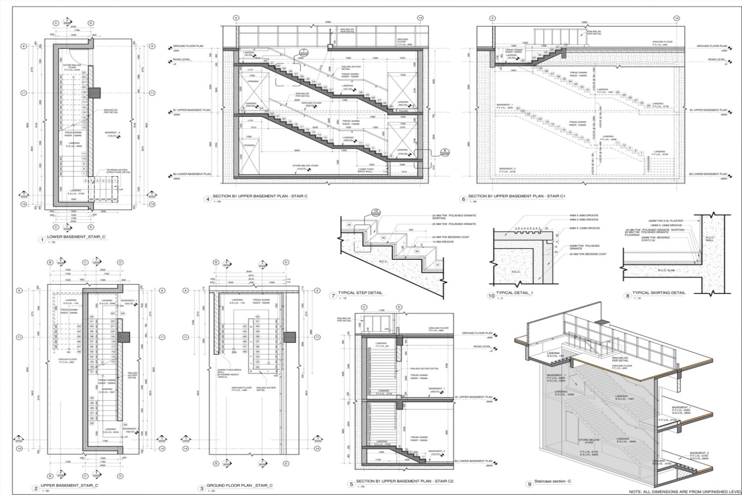
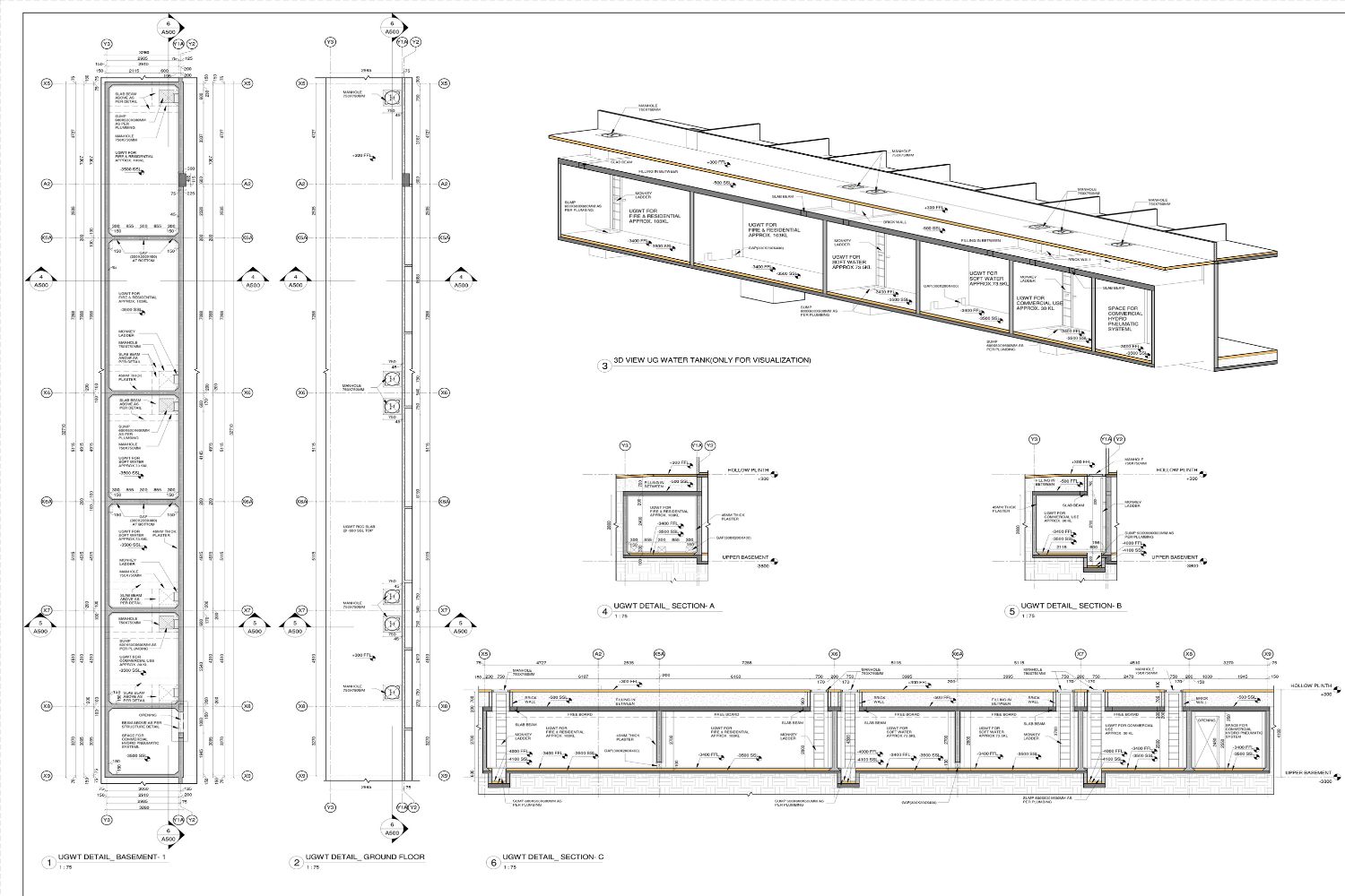
Get high-precision Structural Shop Drawings Services that support efficient fabrication, faster approvals, and error-free construction. Our team delivers detailed structural drawings, structural engineer drawings, and complete structural steel drawings customized for contractors, fabricators, architects, and builders. Whether you need steel building plan drawings, steel stair details, or structural blueprints, we ensure accuracy, clarity, and compliance with project standards aligned with guidelines from the American Institute of Steel Construction.

We prepare curtain wall section details, footing foundation plans, and structural drawings for extensions and new houses with precise dimensions, connection details, and material specifications. Our modeling-to-drawing workflow ensures every component-beams, columns, joists, rebar, and connections-is fully coordinated using tools like AutoCAD.

For residential, commercial, and industrial projects, we deliver structural drawings for a house, steel assemblies, and full fabrication packages that reduce site delays and rework. We also create accurate as-built structural drawings to reflect real-site conditions, perfect for renovations, maintenance, or facility documentation.

With advanced BIM software such as Autodesk Revit and expert detailing practices, we help you streamline construction, improve coordination, and achieve smooth project execution. Get reliable shop drawings that improve quality, speed, and cost efficiency. Request your project quote today.

We offer our Structural Drawings services in key markets worldwide, including the USA, UK, Canada, Mexico, Australia, New Zealand, Europe (Germany, Switzerland, Liechtenstein, Gibraltar, France, Spain, Belgium, Norway, Italy, Turkey, Greece, Slovakia, Austria, Poland, Netherlands, Sweden, Romania, Bulgaria, Denmark, Finland, Portugal, Malta, Bosnia and Herzegovina), UAE, and many more. Start your project today!

Ready to Work with us?

We establish long-term business relationships with our clients and are
committed to complete customer satisfaction. We would love to know
about your next project.

Industries We Serve

Architectural

Engineering

Construction

Laser Surveying

Real-Estate

Manufacturing

Residential

Commercial

Amphitheater

Facilities Management

Industrial

Entertainment

Our Software Expertise

AutoDesk AutoCAD
Graphisoft Archicad
Tekla
Synchro Software
SolidWorks
SketchUp
AUTODESK NAVISWORKS
Hexagon
AUTODESK FORGE
Bluebeam

Recent Projects

Why Choose BimOffis for your Structural Shop Drawings Project

Choose BimOffis for Structural Shop Drawings Services and get accurate steel, concrete, and rebar detailing with fast turnaround, zero-clash coordination, and fabrication-ready outputs. Our expert team ensures compliance, quality, and cost-efficient project delivery. Request a quote today.

Precision-Driven Detailing

We provides accurate drawings that eliminate construction errors.

Expert Structural Team

Our skilled engineers and detailers dedicated to quality.

Compliance with Standards

Our drawings aligned with global codes and project specs.

BIM-Enabled Coordination

Clash-free structural models ensuring smooth execution.

Why Choose Bimoffis

Fast Turnaround Delivery

We provides a quick, efficient, and deadline-focused drawing production.

Fabrication-Ready Outputs

Clear details for seamless shop and site fabrication.

Cost-Optimized Solutions

High-quality detailing at competitive, transparent pricing.

End-to-End Support

From modeling to shop drawings with continuous assistance.

Our Testimonials

Sophia Martinez
Sophia MartinezBIM Consulting Lead
Exceptional & evident professionalism from the start. Surpassed expectations in delivering BIM Consulting Services, a testament to service quality. Grateful!
Maria Jenkins
Maria JenkinsBIM Project Manager
We would like to take the opportunity to express our delight with the progress in BIM Modeling Services. We're thrilled with the efficiency & quality of service that has impressed us.
William Berkey
William BerkeyBIM Advisory Specialist
We are very happy with the finished result and BimOffis as a great BIM Consultant for seeing the potential that we would never have seen ourselves.
James Anderson
James AndersonProject Manager
Accurate CAD to BIM conversion with excellent coordination. Models were clean, detailed, and delivered on time.
Robert Wilson
Robert WilsonStructural Engineer
Outstanding 3D structural modeling quality. The team understood design intent perfectly and delivered clash-free models.
Emily Thompson
Emily ThompsonBIM Coordinator
Scan to BIM results exceeded expectations. High accuracy, clear LOD, and reliable support throughout the project.

Related Services

Frequently Asked Questions from Clients

What is included in structural steel drawings?

Structural steel drawings include beams, columns, connections, plates, bolts, welds, and fabrication details. These drawings support flawless shop manufacturing and onsite installation.

Yes. Steel building plan drawings give contractors exact dimensions, framing layouts, and connection details, reducing rework and improving project accuracy.

Steel stair details show treads, risers, stringers, connections, and material specs. They help fabricators build safe, compliant, and properly aligned stair systems.

Structural blueprints cover framing layouts, load paths, footings, beams, and reinforcement details-ensuring the building is safe, stable, and construction-ready.

Curtain wall section details define profiles, anchors, brackets, glazing, and assembly connections. They ensure façade systems are installed accurately and securely.

Yes. We deliver structural drawings for a house or extension with beams, slabs, columns, footings, and load-bearing details tailored for smooth approvals and safe construction.

Delivery depends on project size, but our optimized workflows enable fast turnaround while maintaining accuracy, coordination, and code compliance.

Yes. We create structural drawings for extensions, remodels, and renovations, ensuring proper load transfer, safe modifications, and approval-ready documentation.

Get a Quote Today

Drop us a line below, and we’ll be in touch.

Latest Blogs

Scroll to Top

Get a Quotation on Your Project