Mechanical Drawings Services

Improve project accuracy with expert Mechanical Drawings Services. Get precise layouts, clear documentation, and fast delivery. Request a quote today!

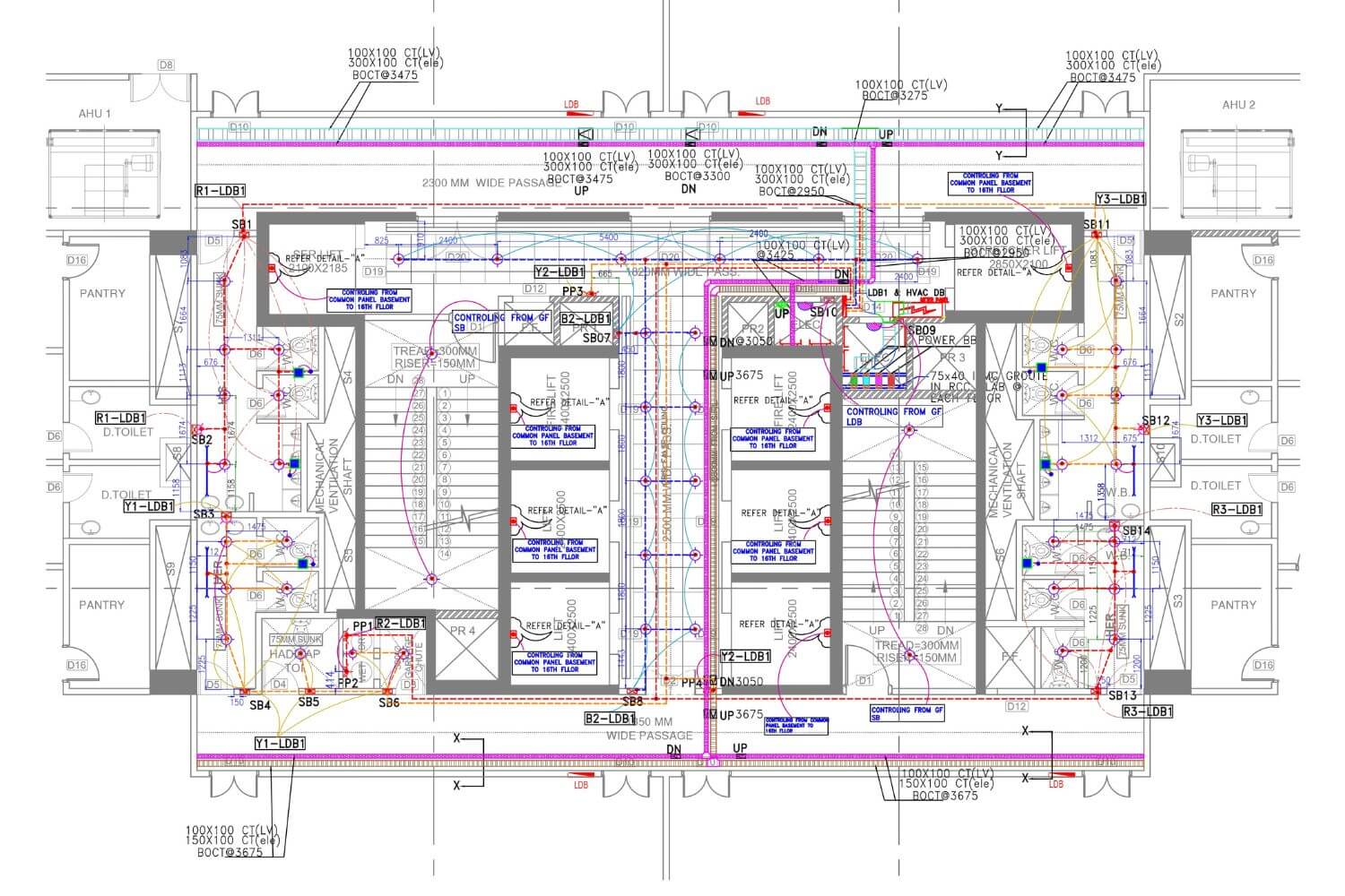
AutoCAD Mechanical Drawings Services

Mechanical Drawings Services 1
Mechanical Drawings Services 2

Professional Mechanical Drafting Solutions for Accurate Engineering

BimOffis provides high-quality AutoCAD-based drafting solutions to enhance project accuracy and engineering efficiency. Our team delivers precise 2D and 3D drawings that support seamless fabrication and installation workflows.

Detailed CAD Drawings for Manufacturing and Fabrication

Using advanced tools like AutoCAD, we create detailed layouts, assembly drawings, HVAC schematics, and piping diagrams tailored to project requirements.

Each drawing includes accurate dimensions, tolerances, and annotations to eliminate errors before construction begins. Our outputs help reduce rework and ensure smooth coordination between teams.

Mechanical Shop Drawings and MEP Coordination Services

We deliver high-quality shop drawings, as-built documentation, and coordinated MEP layouts for contractors and engineers. Our focus on precision and compliance ensures faster approvals and improved execution on-site.

Why Choose BimOffis for CAD Drafting Services

Our experts follow global standards from organizations like American Society of Mechanical Engineers to maintain quality and consistency.

We offer:

  • Scalable drafting support
  • Quick turnaround times
  • Cost-effective solutions
  • Reliable project coordination

Global Mechanical Drafting Services Across Multiple Regions

We serve clients across the USA, UK, Canada, Australia, Europe, and the Middle East, delivering consistent quality and technical expertise for projects of all sizes.

Get Accurate Mechanical Drawings for Your Next Project

Improve your project performance with precise and code-compliant drawings. Request your customized quote today.

Ready to Work with us?

We establish long-term business relationships with our clients and are
committed to complete customer satisfaction. We would love to know
about your next project.

Industries We Serve

Architectural

Engineering

Construction

Laser Surveying

Real-Estate

Manufacturing

Residential

Commercial

Amphitheater

Facilities Management

Industrial

Entertainment

Our Software Expertise

AutoDesk AutoCAD
Graphisoft Archicad
Tekla
Synchro Software
SolidWorks
SketchUp
AUTODESK NAVISWORKS
Hexagon
AUTODESK FORGE
Bluebeam

Recent Projects

Why Choose BimOffis for your Mechanical Drawings Projects

Choose BimOffis for Mechanical Drawings to get precise, code-compliant drafts, fast turnaround, and expert detailing for fabrication and installation. We deliver accurate CAD mechanical drawings that reduce errors, speed approvals, and improve project performance. Request a quote now!

High-Accuracy Drafting

We provide Error-free, detail-rich drawings customized to engineering standards.

Expert Mechanical Drafters

Our skilled AutoCAD specialists delivering precise mechanical drawings.

Fast Turnaround Delivery

Quick drafting timelines without compromising drawing quality.

Cost-Effective Solutions

Affordable services designed to fit your project budget.

Why Choose Bimoffis

Fabrication-Ready Outputs

Drawings optimized for smooth manufacturing and installation.

Customized Drawing Standards

Drafting aligned with your templates, symbols, and specifications.

Streamlined Coordination

Clear drawings ensuring conflict-free multi-discipline workflows.

Complete Documentation Support

End-to-end mechanical drafting, updates, and as-built preparation.

Our Testimonials

Sophia Martinez
Sophia MartinezBIM Consulting Lead
Exceptional & evident professionalism from the start. Surpassed expectations in delivering BIM Consulting Services, a testament to service quality. Grateful!
Maria Jenkins
Maria JenkinsBIM Project Manager
We would like to take the opportunity to express our delight with the progress in BIM Modeling Services. We're thrilled with the efficiency & quality of service that has impressed us.
William Berkey
William BerkeyBIM Advisory Specialist
We are very happy with the finished result and BimOffis as a great BIM Consultant for seeing the potential that we would never have seen ourselves.
James Anderson
James AndersonProject Manager
Accurate CAD to BIM conversion with excellent coordination. Models were clean, detailed, and delivered on time.
Robert Wilson
Robert WilsonStructural Engineer
Outstanding 3D structural modeling quality. The team understood design intent perfectly and delivered clash-free models.
Emily Thompson
Emily ThompsonBIM Coordinator
Scan to BIM results exceeded expectations. High accuracy, clear LOD, and reliable support throughout the project.

Related Services

Frequently Asked Questions from Clients

How accurate are professional mechanical drawings?

Our expert drafters deliver high-precision, code-compliant drawings to reduce rework and delays.

Yes, clear drawings cut errors, boost coordination, and speed up fabrication.

Yes, HVAC, piping, ducting, and equipment layouts are included.

Timelines vary by complexity, but fast turnaround is standard.

Yes, our drawings meet manufacturing standards with exact detailing.

Accurate drawings eliminate rework and material waste, lowering costs.

Yes, updated drawings reflecting actual site conditions.

Get a Quote Today

Drop us a line below, and we’ll be in touch.

Our Latest Blogs

Scroll to Top

Get a Quotation on Your Project