Construction Document Set Services

Get accurate Construction document set services for permits, bids and execution. Ensure clarity, compliance and faster approvals. Request a quick quote today.

Construction Document Set Services

Construction Document Set Services 1
Construction Document Set Services 2

Construction Document Set Services for Accurate Project Execution

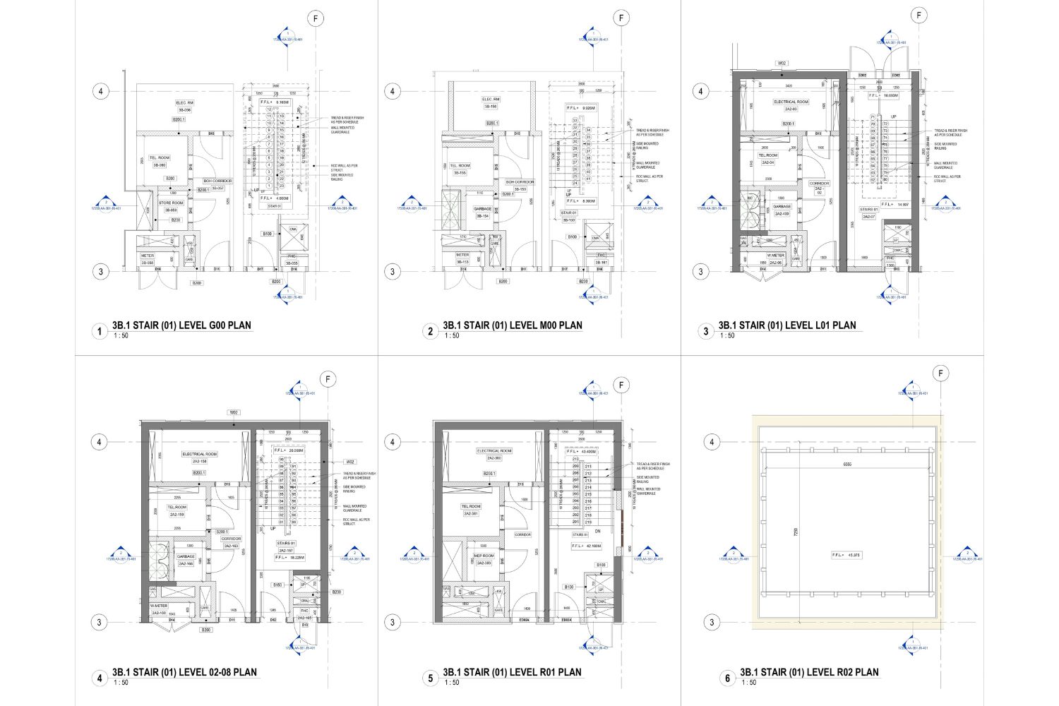
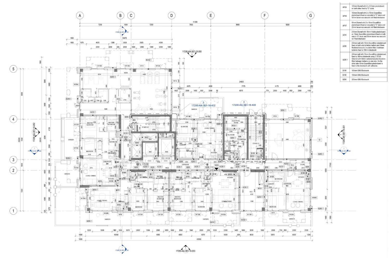
BimOffis offers professional construction document set services to strengthen your project workflow by delivering accurate, compliant, and build-ready documentation for architects, contractors, and builders. We prepare a complete set of architectural drawings, including plans, elevations, sections, schedules, and detailed annotations to ensure seamless construction execution.

Complete Construction Drawing Set with BIM and CAD Workflows

Our team specializes in producing a precise construction drawing set, and a fully coordinated builders set of drawings that meet code, permit, and construction standards. Every construction set drawing is developed using advanced workflows such as Building Information Modeling and CAD systems to minimize errors, reduce RFIs, and improve contractor coordination.

These practices align with industry standards recommended by organizations like National Institute of Building Sciences, ensuring high-quality and compliant deliverables.

Detailed Architectural Construction Document Set

Whether you need a full set of construction documents or project-specific sheets, we deliver clarity, consistency, and technical accuracy. From general notes and material specs to structural details and site plans, we ensure your architectural construction document set is detailed, organized, and ready for approval.

Global Construction Document Set Services for All Project Types

As experts in construction drawing production services, we support residential, commercial, and industrial projects with precise deliverables, quick turnaround, and dedicated support.

We offer our construction document set services in key markets worldwide, including the USA, UK, Canada, Mexico, Australia, New Zealand, and across Europe (Germany, Switzerland, Liechtenstein, Gibraltar, France, Spain, Belgium, Norway, Italy, Turkey, Greece, Slovakia, Austria, Poland, Netherlands, Sweden, Romania, Bulgaria, Denmark, Finland, Portugal, Malta, Bosnia and Herzegovina), UAE, and many more.

Get a Professional Construction Document Set Today

Get a professional, code-compliant construction document set today. Contact us for a fast and reliable quote and start your project with confidence.

Ready to Work with us?

We establish long-term business relationships with our clients and are
committed to complete customer satisfaction. We would love to know
about your next project.

Industries We Serve

Architectural

Engineering

Construction

Laser Surveying

Real-Estate

Manufacturing

Residential

Commercial

Amphitheater

Facilities Management

Industrial

Entertainment

Our Software Expertise

AutoDesk AutoCAD
Graphisoft Archicad
Tekla
Synchro Software
SolidWorks
SketchUp
AUTODESK NAVISWORKS
Hexagon
AUTODESK FORGE
Bluebeam

Recent Projects

Why Choose BimOffis for your Construction Document Set Project

Choose BimOffis for accurate Construction document set services that ensure code compliance, faster approvals, and error-free execution. Get detailed plans, elevations, sections and full working drawings delivered on time. Request your project quote today.

Precision-Driven Drawings

We ensures accurate, code-aligned construction documents.

Expert Architectural Team

Our skilled drafters delivering consistent, high-quality output.

Fast Turnaround Delivery

We provide quick, reliable timelines to meet project deadlines.

Detail-Rich Documentation

Complete plans, sections, schedules, and specs for execution.

Why Choose Bimoffis

Seamless Coordination

Minimizing clashes with clear, coordinated drawings.

Revit and AutoCAD Expertise

Advanced tools for accurate, scalable documentation.

Affordable Pricing Models

Cost-effective solutions customized to project needs.

Dedicated Client Support

Responsive communication from start to delivery.

Our Testimonials

Sophia Martinez
Sophia MartinezBIM Consulting Lead
Exceptional & evident professionalism from the start. Surpassed expectations in delivering BIM Consulting Services, a testament to service quality. Grateful!
Maria Jenkins
Maria JenkinsBIM Project Manager
We would like to take the opportunity to express our delight with the progress in BIM Modeling Services. We're thrilled with the efficiency & quality of service that has impressed us.
William Berkey
William BerkeyBIM Advisory Specialist
We are very happy with the finished result and BimOffis as a great BIM Consultant for seeing the potential that we would never have seen ourselves.
James Anderson
James AndersonProject Manager
Accurate CAD to BIM conversion with excellent coordination. Models were clean, detailed, and delivered on time.
Robert Wilson
Robert WilsonStructural Engineer
Outstanding 3D structural modeling quality. The team understood design intent perfectly and delivered clash-free models.
Emily Thompson
Emily ThompsonBIM Coordinator
Scan to BIM results exceeded expectations. High accuracy, clear LOD, and reliable support throughout the project.

Related Services

Frequently Asked Questions from Clients

Why do I need a full set of construction drawings?

A full set of construction drawings avoids errors, supports contractor coordination, speeds approvals, and improves project quality. Get a complete, code-compliant drawing set tailored for smooth construction and clear communication on site.

A builders set includes floor plans, elevations, sections, site plans, schedules, and construction details. We prepare fully coordinated, ready-to-build drawing packages that help contractors execute your project without confusion or delays.

A construction drawing set includes dimensions, materials, annotations, and technical details. We ensure every sheet is clear, accurate, and aligned with codes, helping you avoid rework and ensuring smooth execution from foundation to finish.

A construction plan set reduces site errors, improves coordination, and keeps your project on schedule. We create accurate, builder-friendly drawings designed to support efficient workflows and fast decision-making on site.

Yes. Permit authorities require a complete, code-compliant drawing set. We deliver high-quality architectural construction document sets that meet local regulations and expedite your approval process.

Our construction drawing production services deliver accurate, detailed, and coordinated documents that improve constructability, reduce errors, and speed up your project. Get a professional, ready-to-build drawing set customized to your needs.

Get a Quote Today

Drop us a line below, and we’ll be in touch.

Latest Blogs

Scroll to Top

Get a Quotation on Your Project