Millwork Shop Drawings Services

Accurate Millwork Shop Drawings Services for cabinetry, joinery and custom interiors. Expert detailing, fast turnaround, and quality assured. Request a quote now.

Millwork Shop Drawings Services

Millwork Shop Drawings Services 1
Millwork Shop Drawings Services 2

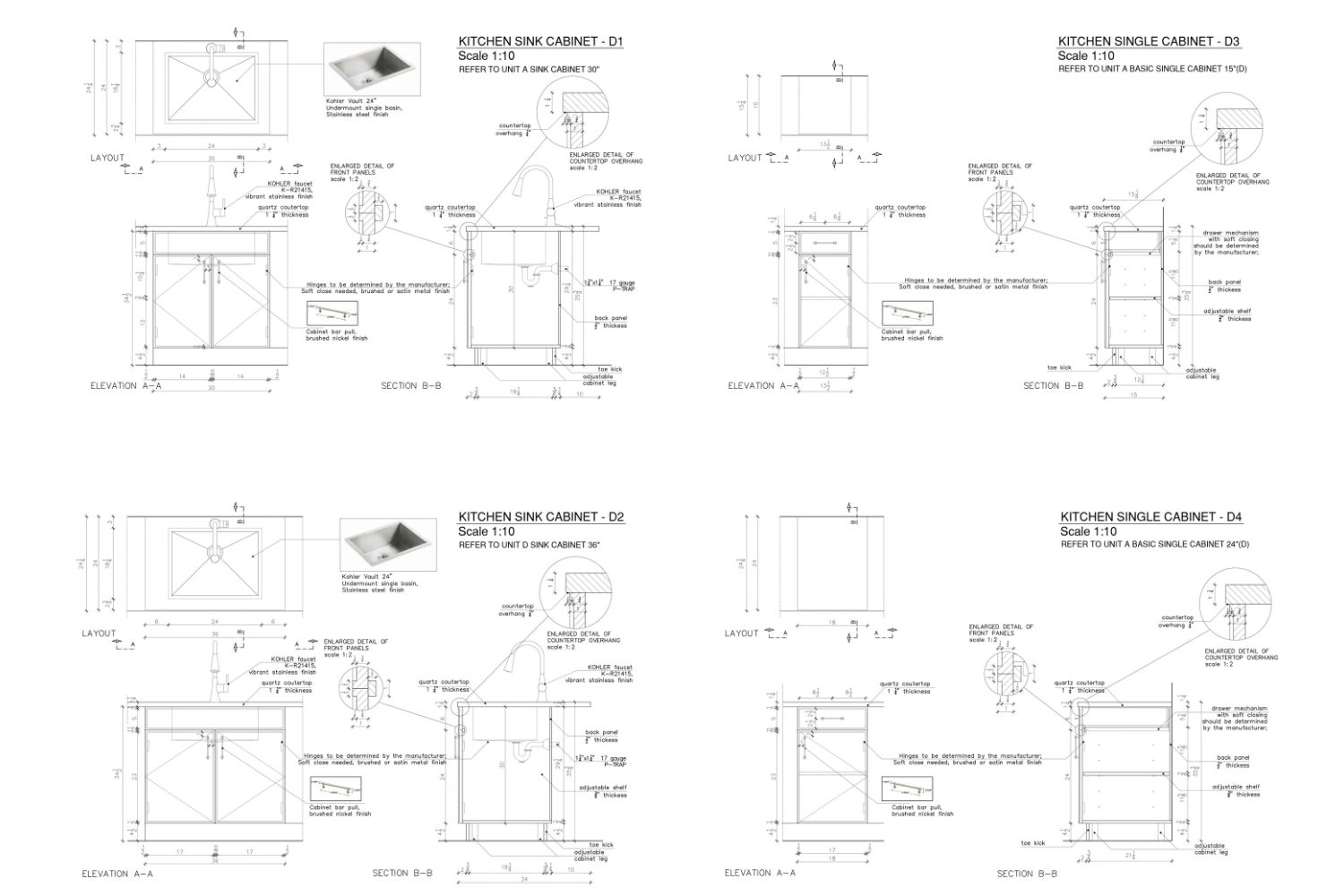
BIMOffis provides professional Millwork Shop Drawings Services to boost your interior project delivery, crafted to ensure accuracy, constructability, and flawless fabrication. We prepare high-quality millwork CAD drawings that capture every dimension, material, joinery, and hardware detail required for manufacturing and installation. Our team specializes in producing precise architectural millwork shop drawings and providing complete architectural millwork drafting services for residential, commercial, hospitality, and retail projects.

Our drawings follow globally recognized standards and best practices recommended by organizations like the Architectural Woodwork Institute, ensuring quality, consistency, and compliance across all project stages.

From cabinets, wardrobes, wall panels, doors, trims, and vanity units to complex built-ins, we deliver detailed kitchen millwork drawings, custom furniture layouts, and assembly-ready sheet sets. Every drawing adheres to industry-accepted millwork drawing standards, ensuring clarity, compliance, and coordination with architects, designers, and contractors.

We also prepare advanced millwork detail drawings, including elevations, sections, joinery details, material specifications, finishes, and tolerance guidelines for seamless shop fabrication. Our team utilizes industry-leading software tools such as AutoCAD and Autodesk Revit to deliver accurate and fabrication-ready documentation.

Whether you need intricate reception desk millwork details, curved elements, custom casework, or multi-view production sheets, our experts deliver with precision. Looking for reliable millwork drawings and documentation? Contact us today for fast turnaround, expert drafting, and fabrication-ready millwork drawings customized to your project needs.

We offer our Millwork Drawings Services in key markets worldwide, including the USA, UK, Canada, Mexico, Australia, New Zealand, Europe (Germany, Switzerland, France, Spain, Italy, Netherlands, Sweden, and more), UAE, and many more. Start your project today!

Ready to Work with us?

We establish long-term business relationships with our clients and are
committed to complete customer satisfaction. We would love to know
about your next project.

Industries We Serve

Architectural

Engineering

Construction

Laser Surveying

Real-Estate

Manufacturing

Residential

Commercial

Amphitheater

Facilities Management

Industrial

Entertainment

Our Software Expertise

AutoDesk AutoCAD
Graphisoft Archicad
Tekla
Synchro Software
SolidWorks
SketchUp
AUTODESK NAVISWORKS
Hexagon
AUTODESK FORGE
Bluebeam

Recent Projects

Why Choose BIMOffis for your Millwork Shop Drawings Project

Choose BIMOffis for precise Millwork Shop Drawings Services crafted by expert drafters using CAD and BIM standards. We deliver accurate cabinetry, joinery and custom interior drawings with fast turnaround and fabrication-ready detailing. Get high-quality millwork drawings. Request a quote today.

Expert Millwork Drafters

Our skilled specialists delivering accurate millwork drawings.

Fabrication-Ready Detailing

Precise joinery details customized for smooth production.

All Interior Millwork Covered

Cabinets, wardrobes, furniture, and custom casework done.

Fast and Consistent Turnaround

We provide quick delivery with reliable drafting quality.

Why Choose Bimoffis

Standards-Compliant Drawings

Created per industry millwork, and CAD standards.

Advanced CAD & BIM Workflow

Smart modeling ensures high accuracy & coordination.

Cost-Effective Millwork Solutions

Competitive pricing based on project requirements.

Dedicated Client Coordination

Smooth communication from start to final delivery.

Our Testimonials

Sophia Martinez
Sophia MartinezBIM Consulting Lead
Exceptional & evident professionalism from the start. Surpassed expectations in delivering BIM Consulting Services, a testament to service quality. Grateful!
Maria Jenkins
Maria JenkinsBIM Project Manager
We would like to take the opportunity to express our delight with the progress in BIM Modeling Services. We're thrilled with the efficiency & quality of service that has impressed us.
William Berkey
William BerkeyBIM Advisory Specialist
We are very happy with the finished result and BimOffis as a great BIM Consultant for seeing the potential that we would never have seen ourselves.
James Anderson
James AndersonProject Manager
Accurate CAD to BIM conversion with excellent coordination. Models were clean, detailed, and delivered on time.
Robert Wilson
Robert WilsonStructural Engineer
Outstanding 3D structural modeling quality. The team understood design intent perfectly and delivered clash-free models.
Emily Thompson
Emily ThompsonBIM Coordinator
Scan to BIM results exceeded expectations. High accuracy, clear LOD, and reliable support throughout the project.

Related Services

Frequently Asked Questions from Clients

How long do millwork shop drawings take?

Timelines depend on scope, but we offer fast turnaround. Share your files for an estimate.

Yes, we revise and convert old PDFs, scans, and sketches into CAD.

Millwork drawings ensure exact dimensions, joinery, and material details for smooth fabrication.

Yes, we follow industry standards for accuracy and quality.

They include elevations, plans, sections, materials, and hardware.

Yes, all hinges, knobs, sliders, and brackets can be included.

Yes, hotels, offices, retail, restaurants, hospitals, malls, theaters, and more.

Kitchen millwork drawings include cabinet layouts, sections, joinery, materials, and hardware.

Standards define symbols, dimensions, tolerances, and drafting conventions to ensure clarity.

Experienced CAD drafters and millwork specialists create these drawings.

Yes, they provide accurate dimensions and assemblies to prevent rework.

Absolutely, they guide cutting, routing, and assembly with precision.

Yes, they show dovetails, dowels, screw points, and adhesives.

Get a Quote Today

Drop us a line below, and we’ll be in touch.

Latest Blogs

Scroll to Top

Get a Quotation on Your Project