Project Overview
Hudson Street Project
For the Hudson Street project, the client needed proper MEPF drawings for a commercial building. They had some inputs, but things weren’t very clear when it came to coordination between different services.
Working on MEPF Drawings
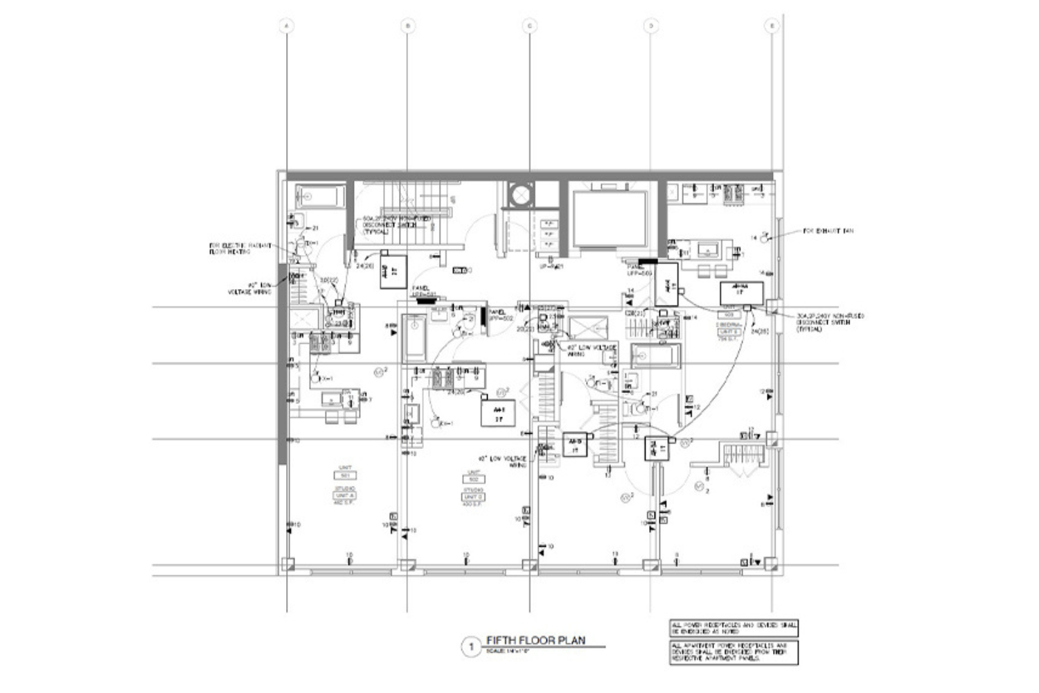
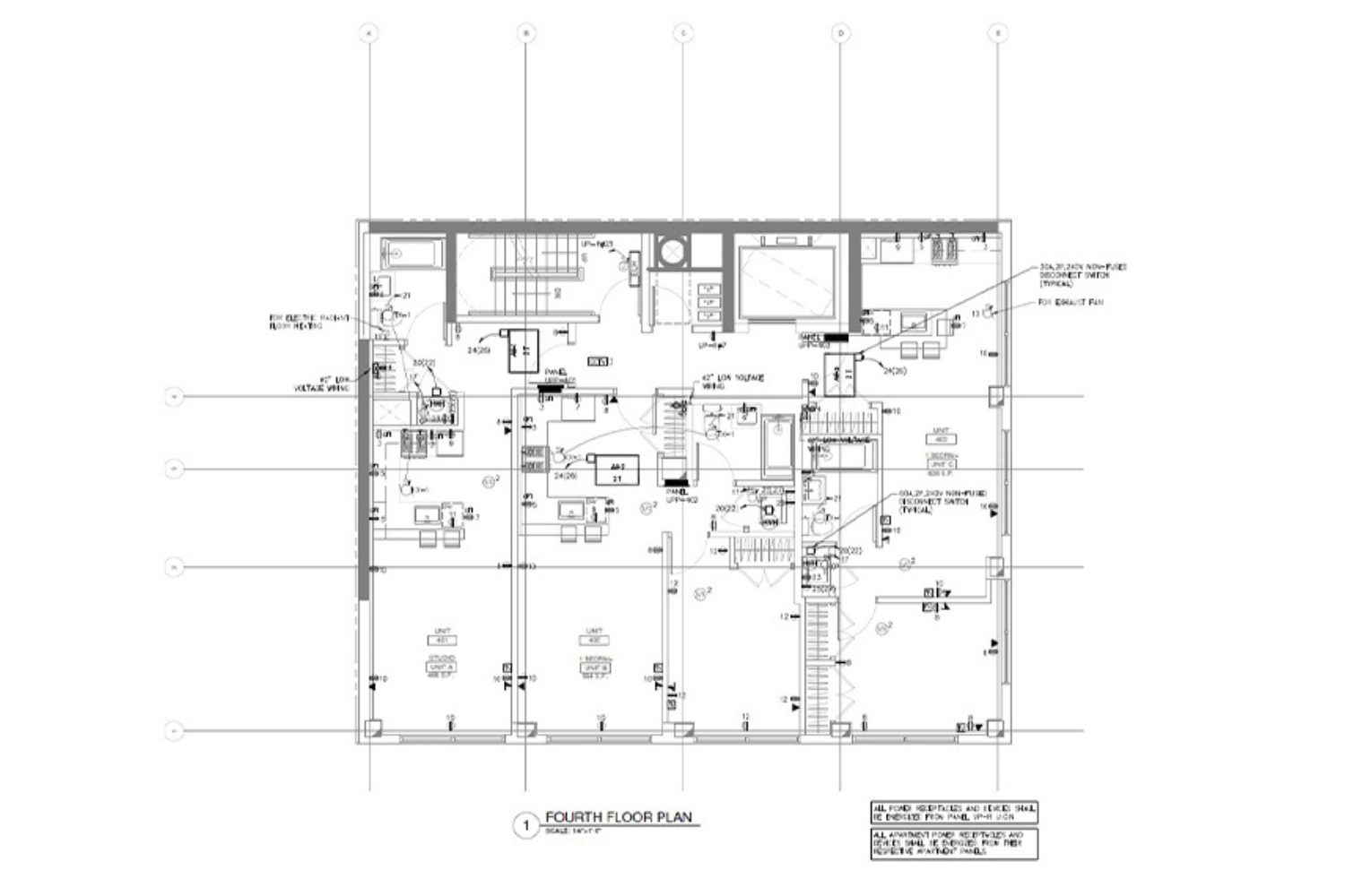
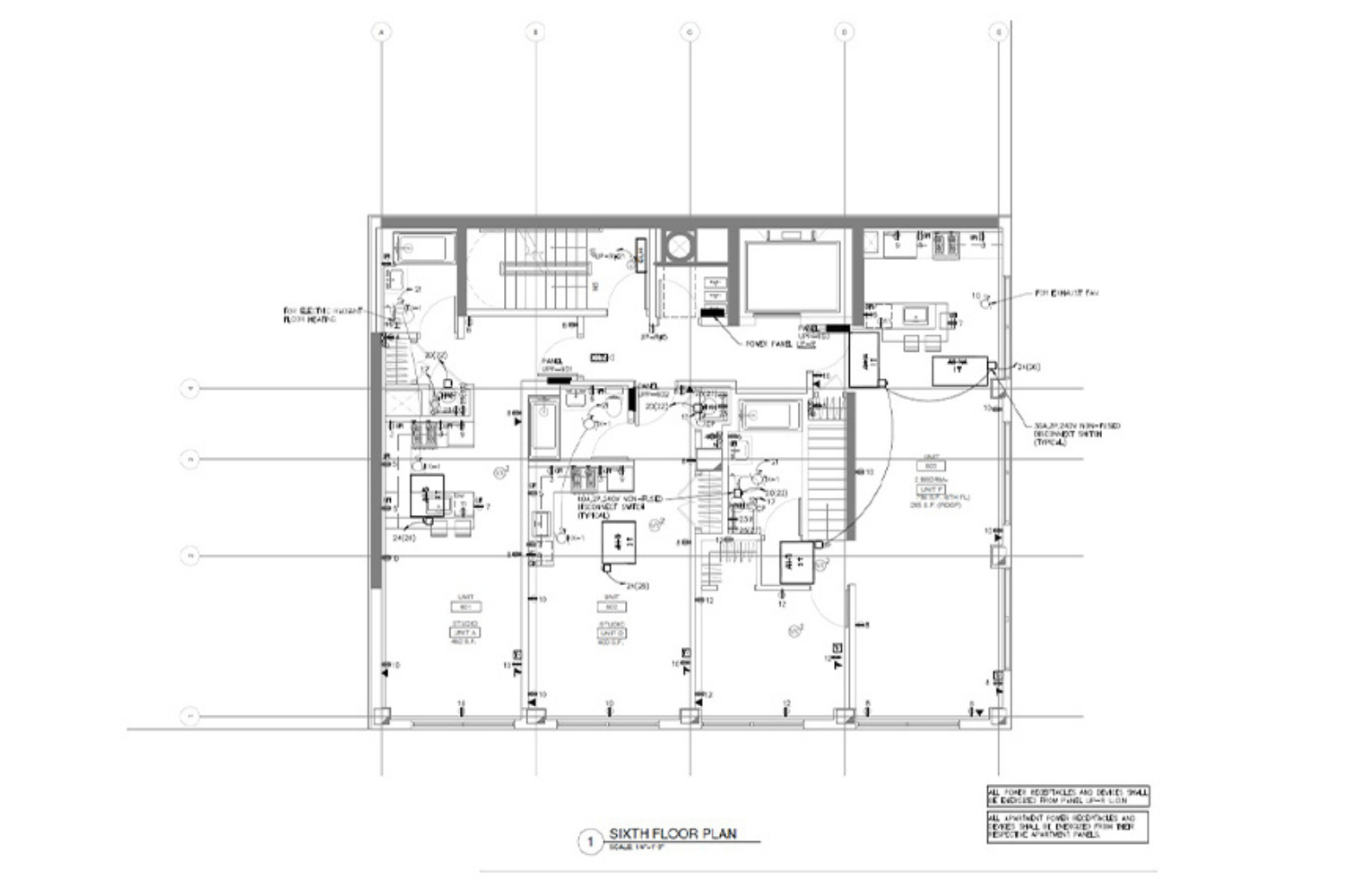
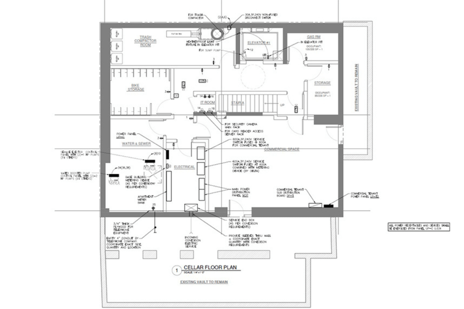
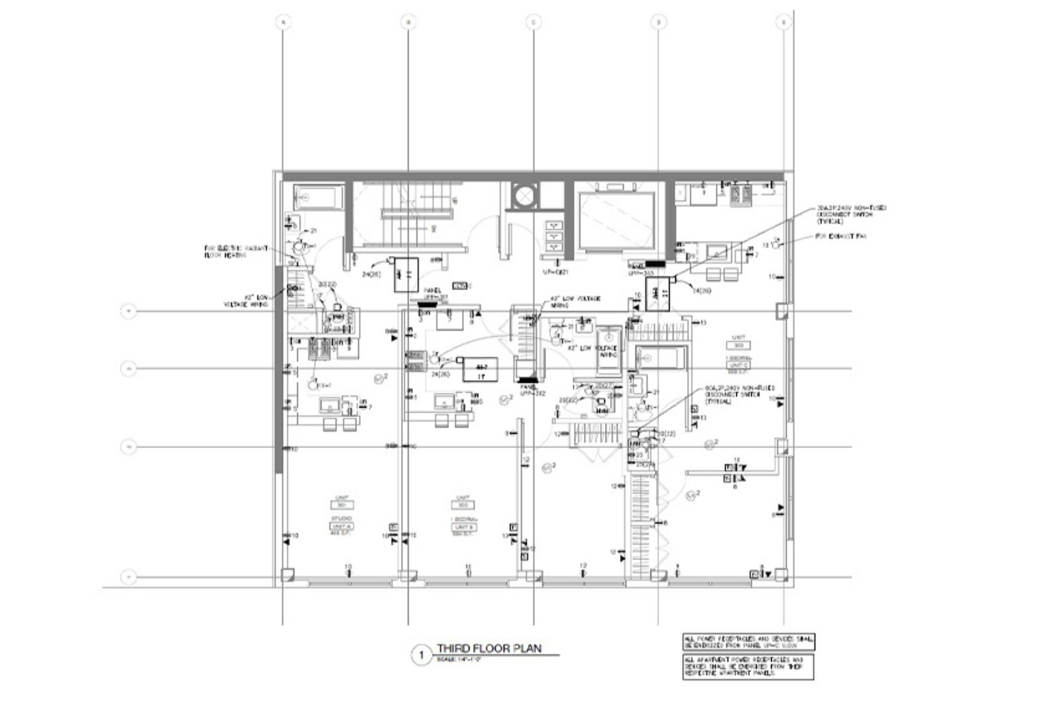
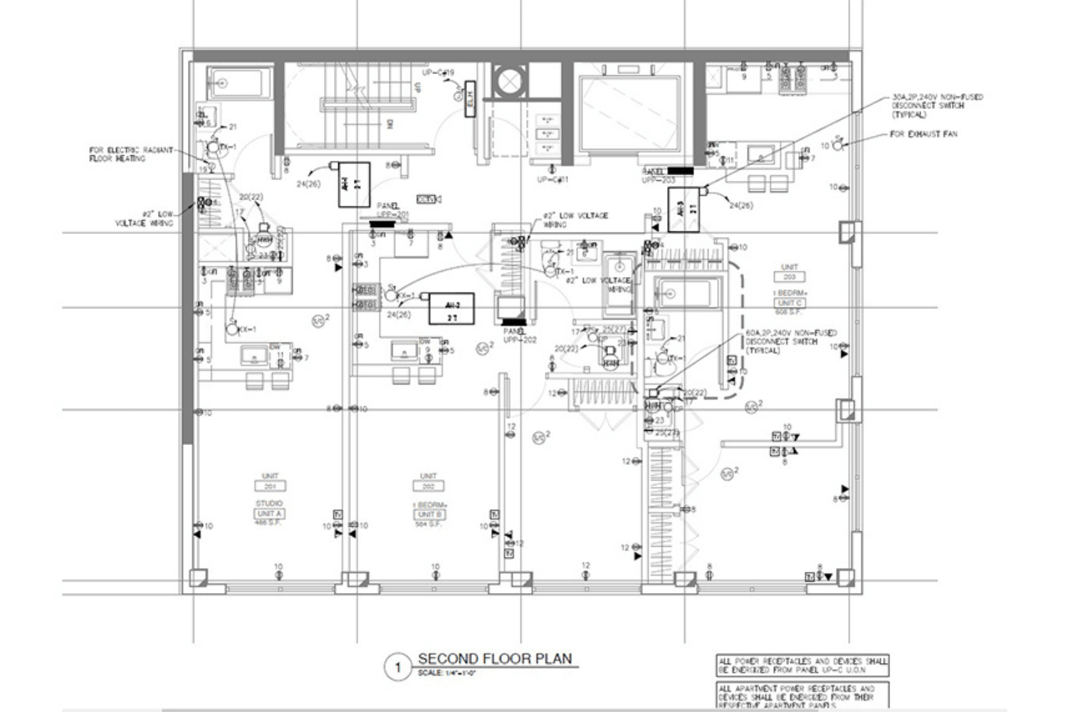
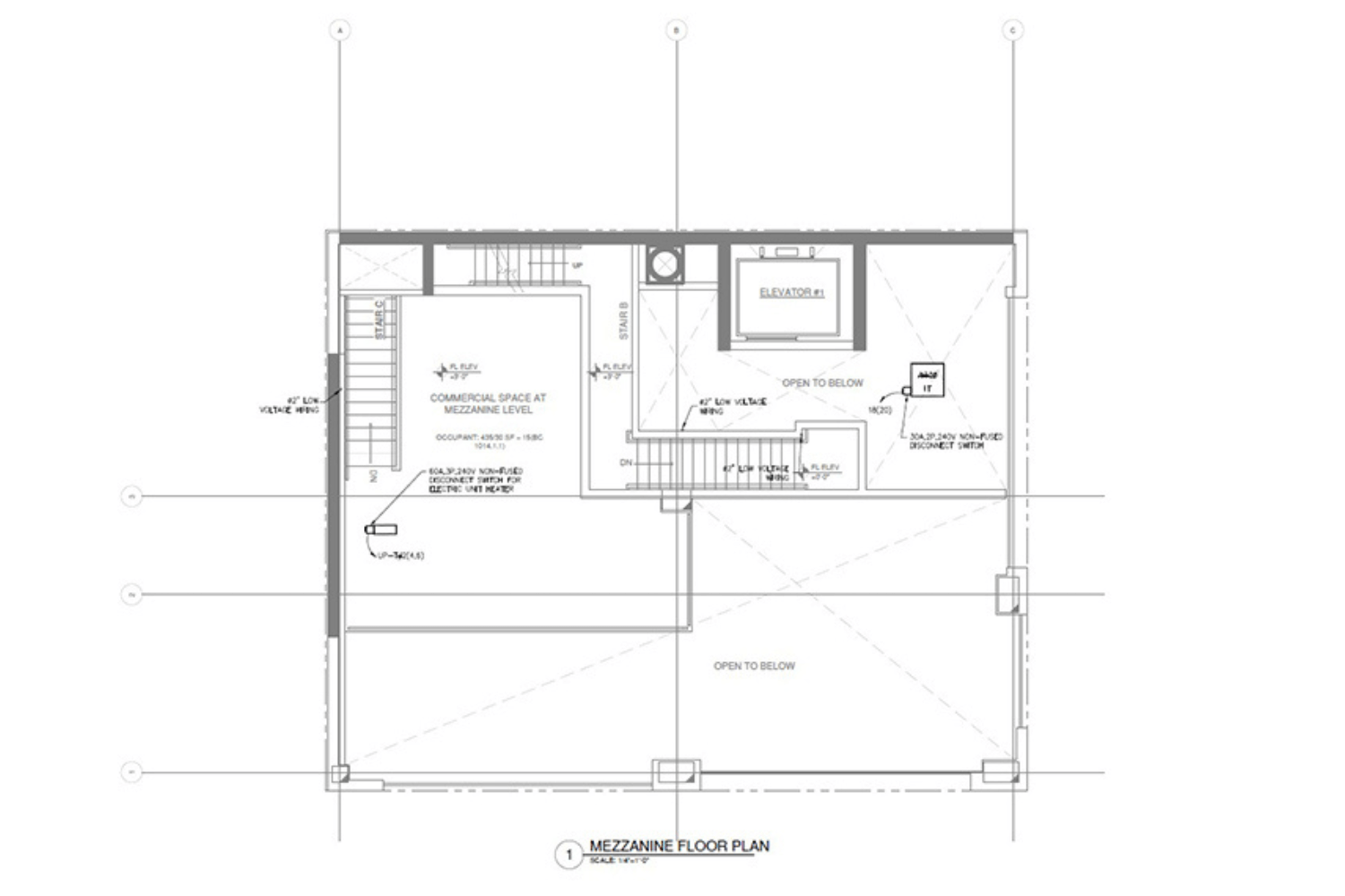
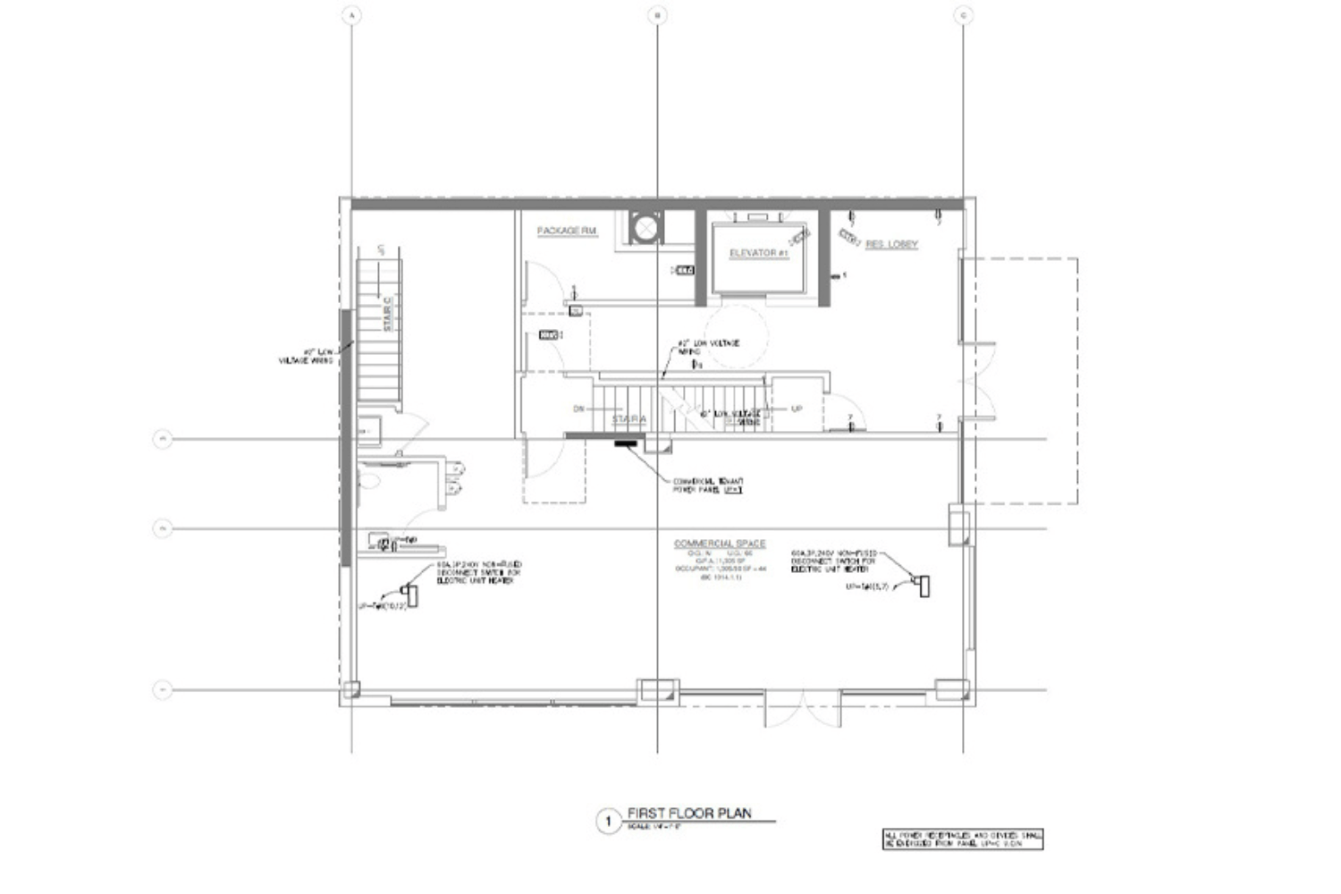
We prepared 2D drawings for mechanical, plumbing, and firefighting systems using AutoCAD and Autodesk Revit. The focus was to keep everything clear and easy to follow so the site team doesn’t get confused.
Checking and Fixing Issues
While working on the drawings, we also did proper design reviews to catch small issues early. This helped avoid mistakes and reduced unnecessary back-and-forth during execution.
Making the Hudson Street Project Smoother
In the end, the drawings made coordination much easier. The team had a clearer understanding, and things moved ahead without too many problems on-site.
Scope of Work
CAD - BIM
Total Area
14,830 Sq. ft
Services
Architecture, Structure & MEPF
Softwares Used
Revit, Navisworks, AutoCAD
Sector
Residential
Location
NY, USA
Ready to Work with us?
We establish long-term business relationships with our clients and are
committed to complete customer satisfaction. We would love to know
about your next project.
Project Challenges
Multiple Input Formats
Managing design inputs from mixed PDF and CAD sources required careful validation to avoid data mismatch and ensure accurate interpretation across all MEPF systems.
Limited Scope Coordination
Excluding architectural, structural, and 3D BIM models increased dependency on available references, making coordination more complex within a strictly 2D workflow.
Interdisciplinary Clash Risks
Identifying potential conflicts between mechanical, plumbing, and firefighting layouts without 3D visualization demanded detailed cross-checking and expert judgment.
Design Clarity Requirements
Ensuring drawings were clear enough to prevent site-level confusion required multiple internal reviews and strict adherence to drafting standards.
Stakeholder Alignment
Coordinating with multiple stakeholders during meetings and incorporating feedback accurately within tight timelines was a continuous challenge.
Change Management
Handling design revisions during documentation while maintaining drawing consistency and version control required structured workflows and close monitoring.
What We Delivered
- Fully coordinated Mechanical, Plumbing, and Firefighting 2D CAD drawings
- Accurate and editable MPF documentation developed using AutoCAD and Revit
- Design review notes highlighting clashes and coordination concerns
- Stakeholder-ready drawings supporting smooth execution and decision-making