Project Overview
Noble Crown Project
For the Noble Crown project, the client had PDFs and design inputs, but it wasn’t very easy to understand everything clearly in that format. So we basically brought everything into a BIM model to make things more clear and usable.
Working on the Model
We built the architectural model in Autodesk Revit. Since it’s a multilevel residential building, there was a lot to handle, but we kept things simple so the team could actually work with it without confusion. We also followed general BIM practices referenced by the National Institute of Building Sciences.
Drawings and Coordination
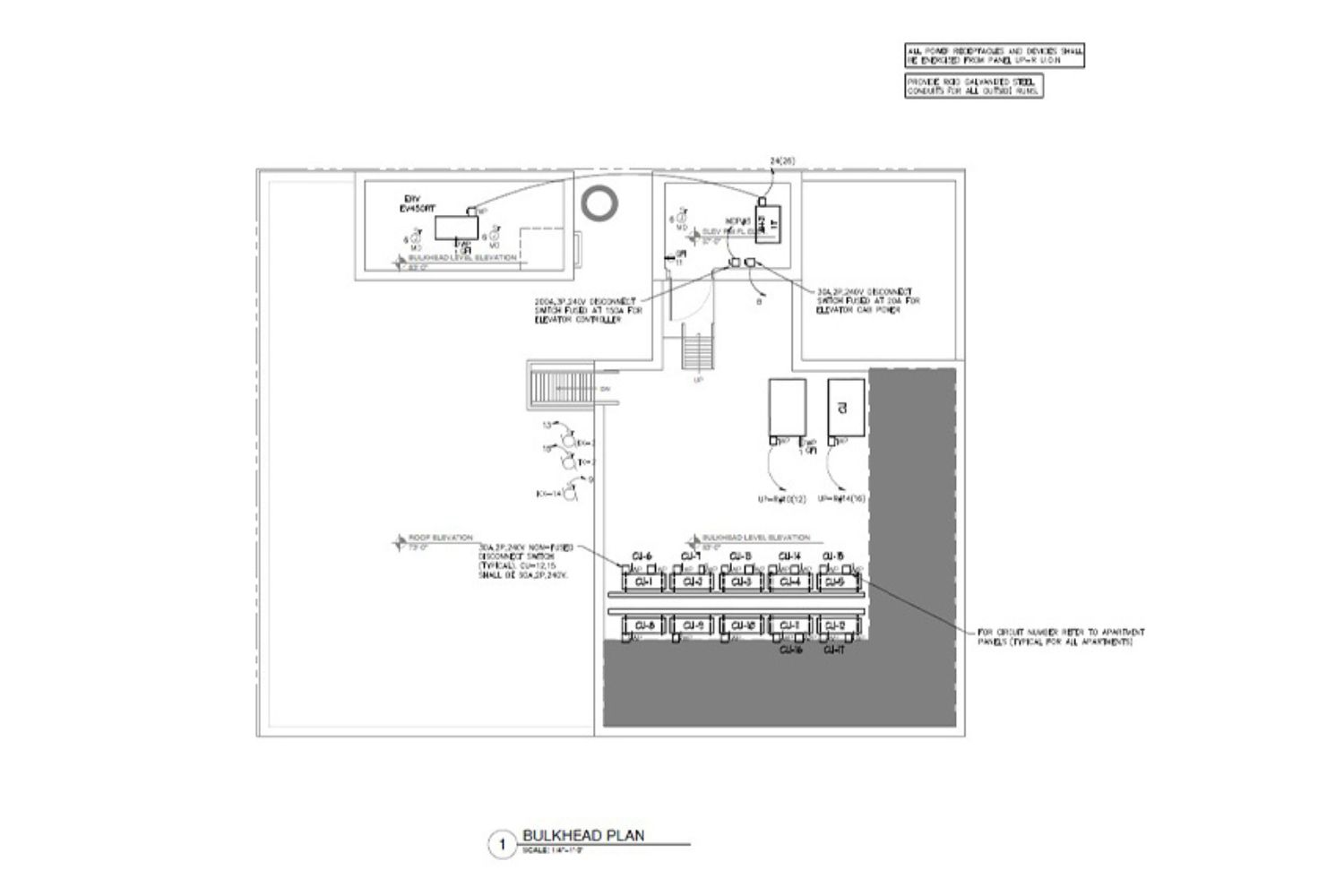
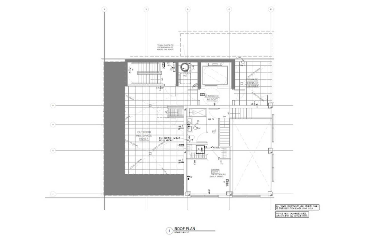
Along with the model, we also prepared construction drawings. This made it easier for the team to understand the design and coordinate things without too much back-and-forth.
Making Things Easier
In the end, having everything in one place just made the project easier to manage. There was less confusion, and the team could move ahead more smoothly.
Scope of Work
CAD - BIM
Total Area
18,375 Sq. Ft.
Services
Architecture, Structure & Interior
Softwares Used
Revit, Navisworks and Lumion
Sector
Residential
Location
NEWARK
Ready to Work with us?
We establish long-term business relationships with our clients and are
committed to complete customer satisfaction. We would love to know
about your next project.
Project Challenges
Interpreting PDF-Based Inputs
Converting PDF drawings into an accurate BIM model required careful interpretation to ensure design intent, dimensions, and architectural details were correctly captured without loss of information.
Maintaining Modeling Accuracy
Achieving high accuracy across multiple levels demanded strict quality checks to ensure walls, floors, openings, and components aligned perfectly throughout the architectural model.
Complex Multi-Level Geometry
Modeling a multilevel residential structure involved handling repetitive floors, vertical alignments, and transitions while maintaining consistency and efficiency in the Revit environment.
Comprehensive Data Integration
Incorporating detailed elements such as casework, fixtures, and appliances required structured data management to ensure the model remained information-rich yet manageable.
Construction Documentation Precision
Producing construction-ready drawings from the BIM model required precise detailing, annotations, and standards compliance to avoid ambiguities during execution.
Timely Delivery Expectations
Meeting project deadlines while ensuring accuracy and completeness demanded optimized workflows and close coordination between engineers and modelers.
What We Delivered
- Accurate Architectural BIM model developed in Revit
- Detailed 3D architectural model including fixtures, casework, and appliances
- Comprehensive construction drawings and documentation
- Coordinated BIM outputs supporting smooth execution and planning